Easy Drain EDFTW1000 Fixt 50 Wandablaufrinne 100x9,8x2cm Seitenauslauf 109mm Edelstahl (Outlet)
Marke:
Easy Drain EDFTW1000 Fixt 50 Wandablaufrinne 100x9,8x2cm Seitenauslauf 109mm Edelstahl (Outlet)
Special Price 170,00 € incl. mwst. Regular Price 263,00 € incl. mwst.
Easy Drain EDFTW1000 Fixt 50 Wandablaufrinne 100x9,8x2cm seitlicher Auslauf 109mm aus Edelstahl
Allgemein
Hersteller
Easy Drain
Serie
Outlet
Lieferzeit
2 bis 3 Tage
Farbe
Edelstahl gebürstet
Spezifikationen
Kategorie OUTLET
Outlet douchegoten
Beschreibung
Easy Drain Fixt 50 Wandablaufrinne 100x9,8x2cm seitlicher Auslauf 109mm aus Edelstahl
Spezifikationen:
Breite des Abflusses: 98 mm + 17 mm
Höhe: 20 mm
Einbautiefe inkl. Siphon: 109 mm
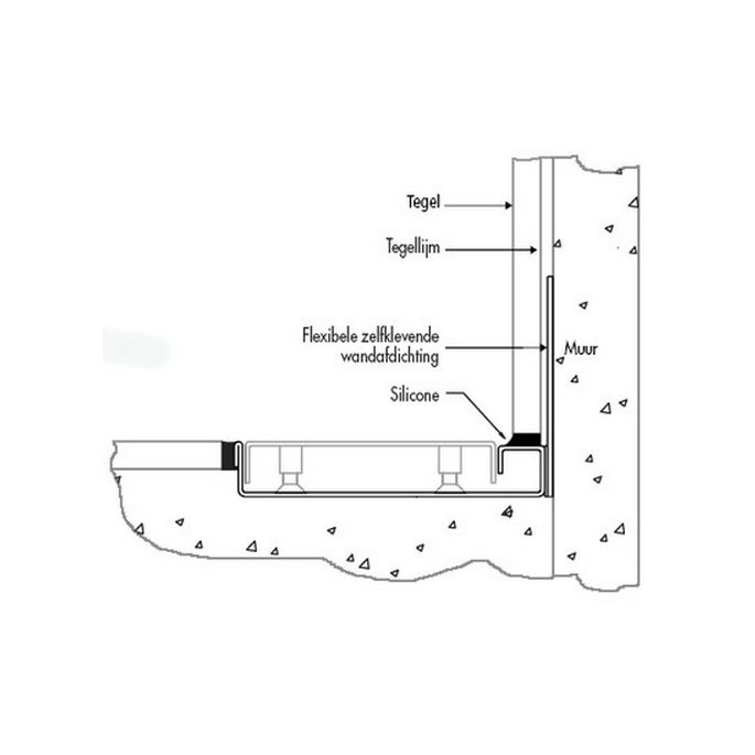
Die Easy Drain Fixt 50 Wall ist speziell für den Einsatz unter Wandfliesen mit einer flexiblen selbstklebenden Wanddichtung konzipiert.
Easy Drain Fixt 50 Wall hat einen 50 mm Anschluss und verfügt über einen reinigbaren, herausnehmbaren Siphon, der den Zugang zum Abflussrohr erleichtert.
Das Paket enthält Fixt 50 inkl. Abdeckung, Überlaufmuffe, Verankerungsklammern, Erdungsklammer, Nivellierfüße und flexible Dichtung.
Entwässerungsleistung:
Stellung A: ca. 48 l/min
















